Imagine 34

0% Comision ! Casa individuala, 530 teren, 125 mp, Gilau

ID: P226748 Gilau 43
165.000€ + TVA 199.900€ + TVA
Descriere
Vă prezentăm spre vânzare o casă individuală cu design modern, construită din materiale de calitate, situată în Gilău, într-o zonă liniștită, ideală pentru locuință de familie.

Suprafețe:

Suprafață utilă: 125 mp

Teren: 530 mp

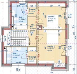
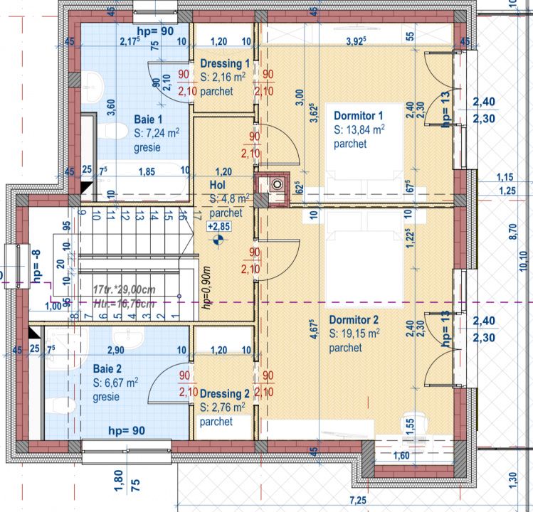
Compartimentare:

Parter:

Baie

Dormitor

Debara / spațiu de depozitare

Living spațios cu bucătărie

Ieșire directă către terasă și grădină

Etaj:

2 dormitoare

2 dressinguri

2 balcoane

Casa se predă la stadiul de semifinisat, cu posibilitate de predare finisată, contra cost, în funcție de preferințele cumpărătorului.

Exterior:

Grădină delimitată și împrejmuită cu gard, ideală pentru relaxare sau spațiu de joacă

Proprietatea este potrivită pentru cei care caută calitate, compartimentare practică și liniște.

ID INTERN - P226748
Caracteristici
  • ID:P226748
  • Nr. camere:4
  • Nr. dormitoare:3
  • S. utila:125.00 mp
  • S. teren:530.00 mp
  • Nr. bucatarii:1
  • Nr. bai:3
  • Nr. balcoane:2
  • Nr. parcari:2
  • Front stradal:1.00 m
  • An constructie:2024
  • Structura rezistenta:Beton
  • Regim inaltime:P+1
  • Orientare:Mixta
Specificatii
Curent
Apa
Canalizare
Gaz
Acces internet
Centrala proprie
Incalzire pardoseala
Izolatie Exterior
Ferestre PVC
Usa intrare PVC
Bucatarie Nemobilata
Apometre
Contor gaz
Nemobilat
Localizare
Mihai Boia
Co - Founder & Broker
Esti interesat de aceasta proprietate ?
Proprietati similare
TOP 0% comision De vanzare Imagine 302
0% Comision – Casă nouă într-un cartier liniștit de case, zona Terra
Floresti, Terra 149.900€ + TVA
4 camere 2 bai 108mp
TOP 0% comision De vanzare Imagine 1519
Comision 0%! Casa individuala semifinisata 110 mp utili teren 400 mp in Lona.
Luna de Sus 159.900€ + TVA
5 camere 3 bai 110mp
0% comision De vanzare Imagine 2086
Casă individuală la roșu, 120, P+M, teren 200 MP, Sannicoara
Sannicoara, Central 160.000€
4 camere 2 bai 120mp
0% comision De vanzare Imagine 1809
Suceagu Gardens – Ansamblu rezidențial | Case individuale | 500–700 mp teren
Suceagu, Central 189.000€
4 camere 2 bai 101mp
0% comision De vanzare Imagine 1712
0% Comision ! Casă modernă de vânzare – liniște, intimitate și confort
Floresti, Terra 165.000€ + TVA
4 camere 3 bai 105mp
0% comision De vanzare Imagine 1261
Duplex nou Popești Cluj | 0% comision | Cartier rezidențial privat
Popesti 186.000€ + TVA
4 camere 3 bai 107mp