Imagine 34

Hală industrială de vânzare – Acces tir, locație strategică în zonă industriala

ID: P226689 Floresti, Avram Iancu 17
499.900€ + TVA
Descriere
Vă oferim spre vânzare o hală industrială modernă, situată într-o zonă industrială bine poziționată, cu acces facil pentru TIR-uri și transport de marfă.

Caracteristici principale:
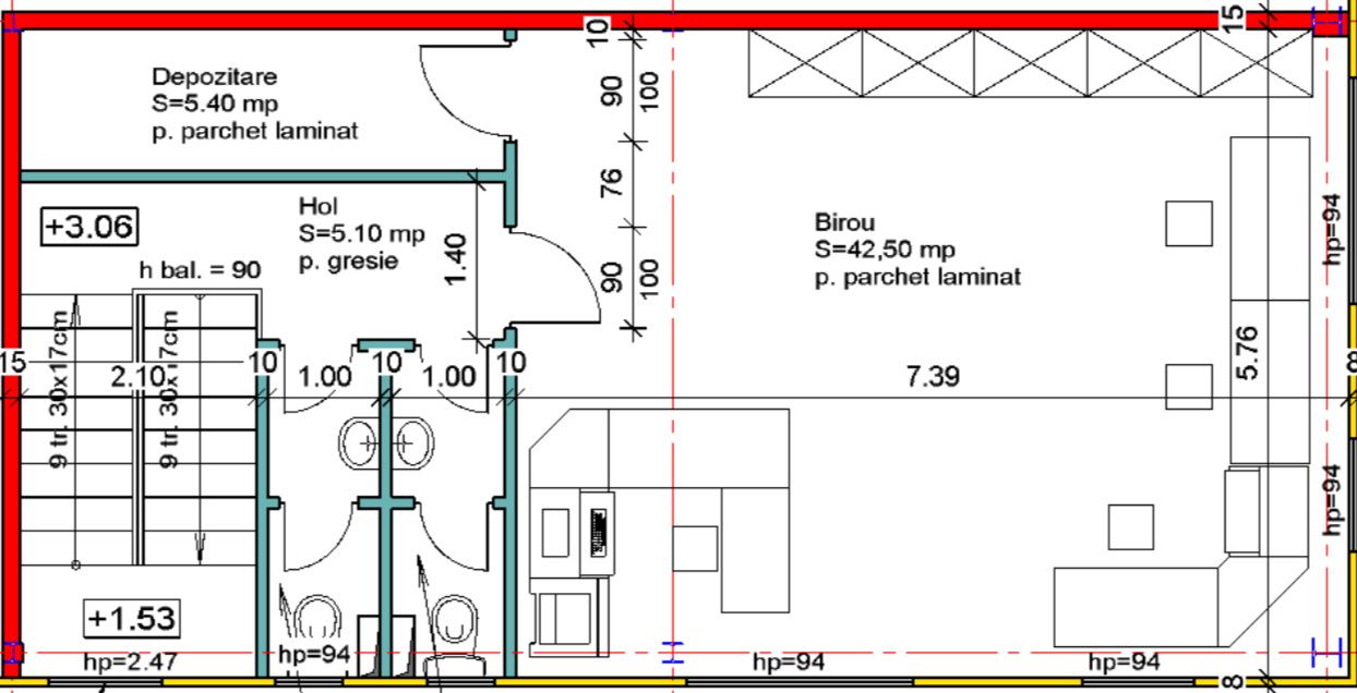
Suprafata totala 440 mp
Suprafata teren 947 mp

Suprafață spatiu depozitare: 330 mp

Structură parter + etaj, ideală pentru activități logistice, de producție ușoară sau depozitare

Parter:

Spațiu generos de depozitare/logistică

Grup sanitar

Vestiar

Birou administrativ

Etaj:

Birou spațios

Spațiu suplimentar de depozitare

Două grupuri sanitare

Beneficii:

Acces facil pentru vehicule de mare tonaj (TIR)

Zonă industrială activă, cu infrastructură dezvoltată

Ideală pentru firme de logistică, distribuție, producție sau comerț en-gros

Această proprietate reprezintă o oportunitate excelentă pentru investitori sau antreprenori care caută un spațiu bine organizat, cu facilități complete și amplasare strategică.

ID INTERN - P226689
Caracteristici
  • ID:P226689
  • S. utila:440.00 mp
  • S. curte:947.00 mp
  • Comp.:Compartimentat
  • Nr. bai:3
  • Nr. parcari:4
  • An constructie:2025
  • Structura rezistenta:Metal
  • Regim inaltime:P+1
Specificatii
Curent
Apa
Canalizare
Gaz
Centrala proprie
Localizare
Mihai Boia
Co - Founder & Broker
Esti interesat de aceasta proprietate ?
Proprietati similare
TOP 0% comision De vanzare Imagine 811
HALĂ in constructie, 580 mp , TEREN 1.300 mp ! GILĂU
Gilau, Sud-Est 439.000€ 460.000€
3 camere 2 bai 580mp